In early 2011, we were commissioned to work on the Science Museum’s new Information Age gallery.
From the outset, we knew this project would create a special challenge. With an impressive range of assets – 200 years of inventions, 800 unique objects and a vast gallery space measuring 2,500m2, this would be a unique gallery within the Science Museum.
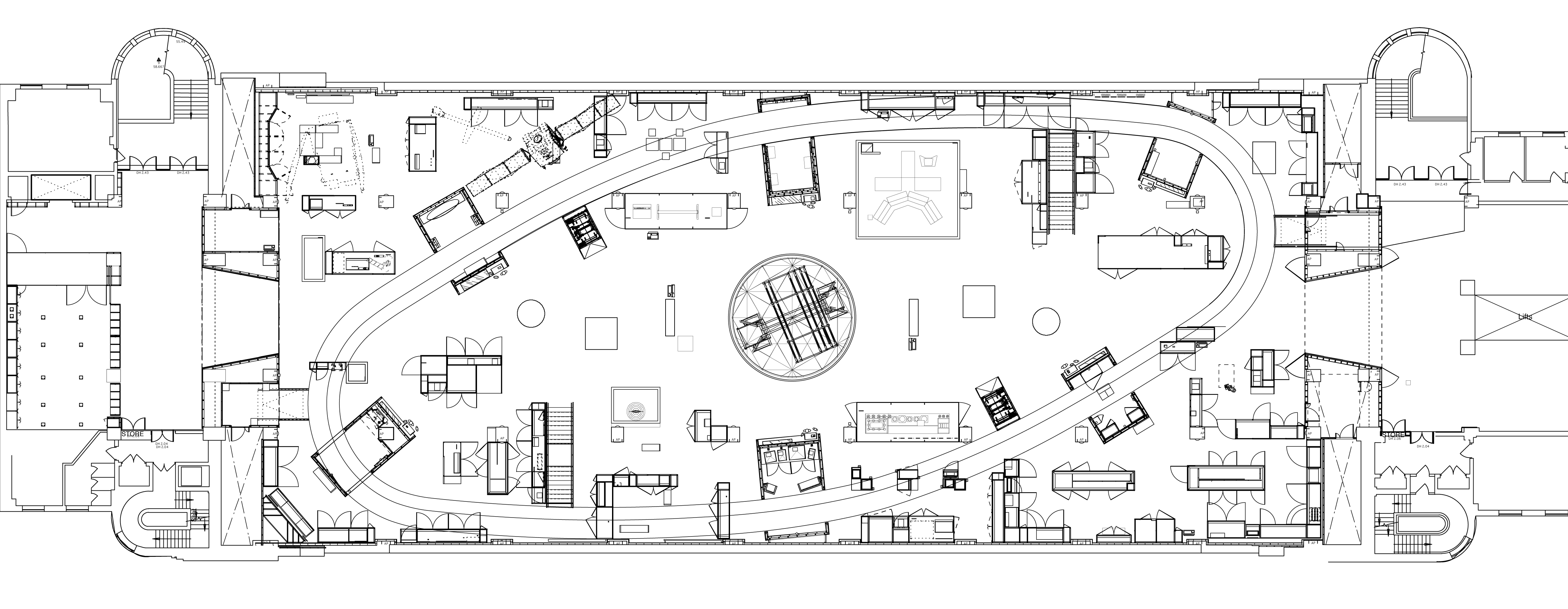
One of the biggest challenges we faced was organising the huge empty space into a navigable gallery whilst giving each object and story a platform on which to shine.

We started with the largest and most impressive object of all – the aerial tuning coil from Rugby Radio Station, which we decided to place at the heart of the gallery.
Made from timber and webs of cables, this incredible object looks almost primitive in construction. This ambiguity made it a great tool for us to draw visitors into the centre of the gallery and make them question their preconceptions of modern communications. It is a world away from the common communication devices that spring to mind – mobile phones, micro-chips and digiboxes.
We learnt that the tuning coil was housed underneath a copper shroud – we think to dissipate heat and prevent the timber structure from igniting. This provided us with a material that resonated with the object’s history and a warm, reflective surface for the display. The coil is located where visitors can learn about the transmitter, signal and receiver.
From the centre you can see that the gallery is divided into six networks – each one telling stories from a specific section of communication technology. Placed around the outsides of the gallery, similar to the idea of a town square or plaza, we placed large double height display cases. These display structures are designed to house a vast array of objects.

These display structures serve several purposes. One function is to hold up the elevated walkway that encircles the gallery. More importantly, they allow visitors to engage with the incredible objects and stories told in each of the six networks. For this reason, they became known as storyboxes. To provide a varied experience, both a producer and a ‘voice’ were assigned to a storybox for each network, creating an installation of their conception.
The sheer quantity of objects on display within the gallery required meticulous planning of the space.
Stories with large numbers of objects fill showcases, which in turn create smaller spaces and routes throughout the gallery. A key concern was to ensure visitors knew where their attention should be focussed, especially in a gallery without a prescribed route.
We crafted a space that used solid forms and open apertures within the gallery, providing clear groups of objects along with vistas from one section to another.
Lastly, we designed a large encircling walkway that loops around the gallery. We introduced this to provide an overview of the space and an alternative perspective of the gallery. We felt it was important for visitors to understand the context of each story within the scheme of the gallery – allowing them to connect objects from one end of the space to the other.
Fundamentally, this is a gallery about incredible objects, people and stories. The format of the gallery plays a supporting role to these awe-inspiring exhibits. We hope visitors will enjoy experiencing the gallery through the space we have designed.
Nick Rolls is the Design Project Leader at Universal Design Studio. The Information Age gallery will be welcoming visitors from 25 October 2014.